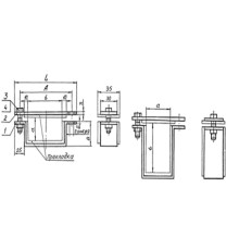
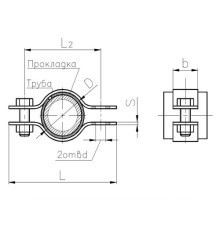
Подвески судовых трубопроводов предназначены для надежного крепления и поддержания трубных систем на судах и кораблях. Они обеспечивают стабильность, компенсируют вибрации и тепловое расширение, что критически важно для безопасной эксплуатации судовых инженерных систем.
Использование качественных подвесок позволяет значительно повысить срок службы трубопроводов, снизить нагрузку на соединения и предотвратить аварийные ситуации. Это прямо влияет на бесперебойную работу судна и снижение затрат на обслуживание.
Мы предлагаем изделия, соответствующие строгим отраслевым стандартам. В нашем каталоге представлены различные типы подвесок, включая Тип 1, Тип 2, Тип 3, Тип 4, Тип 5, Тип 6, Тип 7, Тип 8, Тип 9, а также тяги пружинные 1А, для полного оснащения любого проекта.
Оформите онлайн-заказ для юридических лиц с безналичным расчетом, запросите коммерческое предложение и воспользуйтесь оперативной доставкой по всей Беларуси.
