• Наличие
    В наличии
Цена по запросу

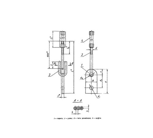
Тяга резьбовая с серьгой и муфтой предназначена для надёжного крепления и регулировки положения трубопроводных опор в системах промышленных коммуникаций. Изделие обеспечивает необходимую жёсткость и устойчивость конструкций, эффективно компенсируя тепловые расширения и вибрационные нагрузки.

Ключевым преимуществом является вариативность выбора под конкретные проектные задачи. Доступны различные диаметры (16, 20, 24, 28, 30, 36, 45, 50 мм) и грузоподъёмность (от 15 до 150 кН), что позволяет подобрать оптимальное решение для любого объекта.

Изготовленные из качественных марок стали (сталь 20, сталь 3), тяги отличаются высокой прочностью, долговечностью и устойчивостью к коррозии. Каждое изделие соответствует строгим стандартам качества и рассчитано на длительную эксплуатацию в условиях значительных механических напряжений.

Отзывов: 0

Нет отзывов об этом товаре.

Вопросов: 0

Пока нет вопросов об этом товаре. Станьте первым!