- НаличиеВ наличии
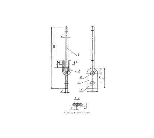
Тяги с серьгой предназначены для надёжного подвешивания и крепления трубопроводов различных коммуникаций. Они являются ключевым элементом подвесных систем, обеспечивающим регулировку высоты и компенсацию тепловых расширений.
Использование тяг позволяет равномерно распределить нагрузку, повысить устойчивость и долговечность всей трубопроводной системы. Это обеспечивает безопасную и бесперебойную эксплуатацию на промышленных объектах.
Изготавливаются из качественных марок стали (20 и 3), что гарантирует высокую прочность и коррозионную стойкость. Доступны с различными допусками на нагрузку: от 3 до 150 кН.
Мы предлагаем широкий выбор типоразмеров по диаметру (от 10 до 45 мм) и массе. Возможен безналичный расчет для юридических лиц, оперативная доставка и составление коммерческого предложения.
Нет отзывов об этом товаре.
Пока нет вопросов об этом товаре. Станьте первым!
